North Adelaide
78 Barnard Street
- 5
- 3
- 4
Grand Victorian residence c.1880 beautifully renovated with stunning architecturally designed extension sited on 3 Titles totalling 1,770sqm approx.
This property presents a generational opportunity to secure a magical North Adelaide landmark mansion. A striking street presence, this residence has been meticulously restored preserving its beautiful original detailing whilst updating and transforming with a modern twist.
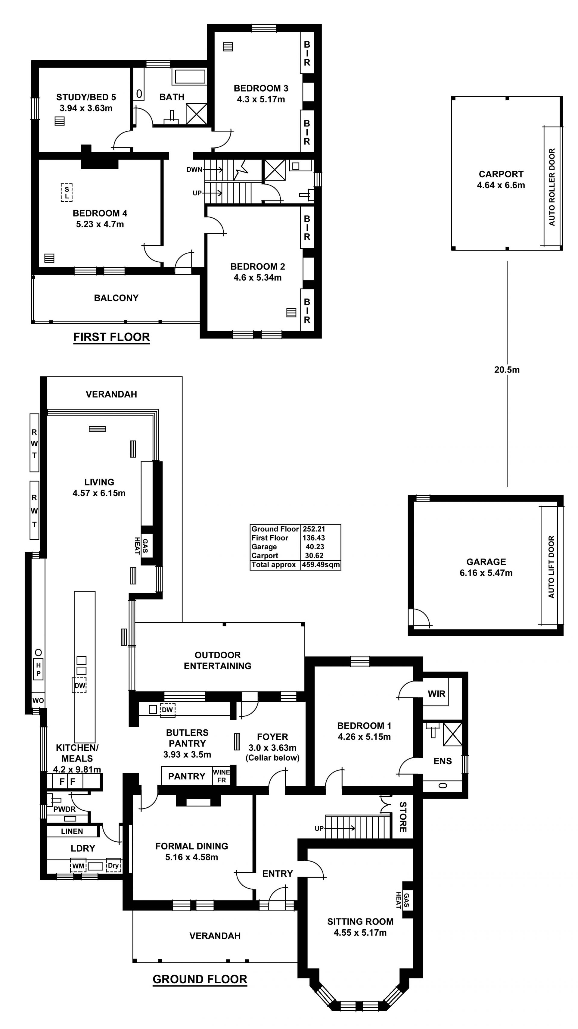
The architecturally designed extension features floor to ceiling glass capturing the glorious established gardens and manicured lawns that stretch across this botanic allotment. A lavish contemporary kitchen extends from the original residence with an expansive, leather finish black granite island counter stretching over 4m with a stained oak table extending out to form a casual dining table.
The floor-to-ceiling glass in the capacious living area draws you outside; featuring a gas fire to cosy up to on those cooler nights. The formal dining room oozes elegance and formal sitting room features a large bay window over-looking Barnard Street.
Enjoy the commodious master suite with walk-in robe and ensuite, a further three substantial bedrooms plus fifth bedroom/study, two newly renovated, sparkling white bathrooms and guest W/C.
A two car garage and two car carport can be accessed via Barnard Lane, which also wraps around the rear of the property.
Please note, cellar access beneath the foyer needs to be re-established
Please contact Andrew Fox 0418 832 227 to arrange a private inspection.
Special features
- 3 street frontages
- Clipsal C-Bus smart cabling throughout house and garage
- All new LED downlights to entire house
- Integrated side-by-side sub-zero fridge/freezer with internal icemaker
- Billi instant hot/cold water tap
- 2 integrated dishwashers (Miele and XXL Siemens)
- Transtherm Ermitage wine fridge that holds 182 bottles
- 'Wolf' E series oven and warming draw
- 'Highland' 3 zone inline induction hotplate
- Gas wok burner
- 2,000L RW tanks
- 5 camera CCTV monitored intelligent security system
- Crimsafe to accessible doors and windows at rear
- New hard wearing oiled finish 'Roast Peat' Australian blackbutt flooring
- Extension features double glazed windows and doors and wall and ceiling acoustic insulation
- Restoration of stone to front of house, cast iron fence and verandah posts
- Automatic watering system in front and rear garden
Council rates: $6,317.45 pa
Water rates: $658.42 pq
ES Levy: $1,177.15 pa
Year Built: 1880
The architecturally designed extension features floor to ceiling glass capturing the glorious established gardens and manicured lawns that stretch across this botanic allotment. A lavish contemporary kitchen extends from the original residence with an expansive, leather finish black granite island counter stretching over 4m with a stained oak table extending out to form a casual dining table.
The floor-to-ceiling glass in the capacious living area draws you outside; featuring a gas fire to cosy up to on those cooler nights. The formal dining room oozes elegance and formal sitting room features a large bay window over-looking Barnard Street.
Enjoy the commodious master suite with walk-in robe and ensuite, a further three substantial bedrooms plus fifth bedroom/study, two newly renovated, sparkling white bathrooms and guest W/C.
A two car garage and two car carport can be accessed via Barnard Lane, which also wraps around the rear of the property.
Please note, cellar access beneath the foyer needs to be re-established
Please contact Andrew Fox 0418 832 227 to arrange a private inspection.
Special features
- 3 street frontages
- Clipsal C-Bus smart cabling throughout house and garage
- All new LED downlights to entire house
- Integrated side-by-side sub-zero fridge/freezer with internal icemaker
- Billi instant hot/cold water tap
- 2 integrated dishwashers (Miele and XXL Siemens)
- Transtherm Ermitage wine fridge that holds 182 bottles
- 'Wolf' E series oven and warming draw
- 'Highland' 3 zone inline induction hotplate
- Gas wok burner
- 2,000L RW tanks
- 5 camera CCTV monitored intelligent security system
- Crimsafe to accessible doors and windows at rear
- New hard wearing oiled finish 'Roast Peat' Australian blackbutt flooring
- Extension features double glazed windows and doors and wall and ceiling acoustic insulation
- Restoration of stone to front of house, cast iron fence and verandah posts
- Automatic watering system in front and rear garden
Council rates: $6,317.45 pa
Water rates: $658.42 pq
ES Levy: $1,177.15 pa
Year Built: 1880
